Fraud Blocker Vaillant protočni bojler Exclusive VED E 18/8 E INT 0010023754, Inelektronik

Koristimo internet kolačiće (cookies) i poštujemo Vašu privatnost kako bi imali optimalno iskustvo na našoj web strani.
Pogledajte Politiku privatnosti za više detalja.

Opis proizvoda

Vaillant protočni bojler Exclusive VED E 18/8 E INT 0010023754

KARAKTERISTIKE:

  • Električni protočni grejač za pripremu tople vode - VED exclusive, pruža najveći komfor tople vode i rukovanja zahvaljujući elektronskoj kontroli rada i količine vode, vodootpornom bežičnom daljinskom upravljanju i lako čitljivom displeju.
  • Elektronika meri ulaznu temperaturu hladne vode i potreban protok, te na osnovu toga određuje potrebnu snagu za postizanje željene temperature tople vode, koja se može podesiti između 20 i 55 °C sa korakom od 0,5 °C. Kod oscilacije pritiska i ulazne temperature, postavljena temperatura ostaje konstantna, čak i ako se npr. kod tuša, kade ili sudopere u isto vreme traži topla voda. Putem integrisanog energetskog nadzora, korisnik može da prati aktuelnu potrošnju energije.
  • Uređaj se isporučuje sa vodootpornim daljinskim upravljačem putem kojega je moguće podesiti željenu temperaturu tople vode direktno iz kade ili tuš kabine.
  • Zaštita od prevruće i zaštita od prskajuće vode, pruža krajnjem korisniku maksimalnu moguću zaštitu.
  • Za rad uređaja neophodno je obezbediti trofazni električni priključak.
  • Razred energetske efikasnosti na pripremi tople vode (raspon od A+ do F): A

SPECIFIKACIJA:

  • Šifra proizvoda: 0010023754
  • Serija proizvodnje: Exclusive
  • Snaga: 18 KW
  • Izlazna temperatura vode: 20 - 55°C
  • Regulacija temperature sa korakom od 1°C
  • Bežični daljinski upravljač je sastavni deo isporuke
  • Konstantna temperatura tople vode u skladu sa učinkom uređaja
  • 7-segmentni ekran za prikaz temperature vode
  • Ekran se može premestiti na vrh uređaja
  • Jednostavan prikaz displeja sa funkcijom praćenjem potrošnje
  • Moderan dizajn sa dubinom od svega 10 cm
  • Montiranje: Niska montaža, visoka montaža
  • Način ugradnje: Vertikalno
  • Maksimalni protok vode ΔT 30 K: 12 lit/min
  • Minimalni protok vode: 3 l/min
  • Presek kabla: 5 x 4 mm2
  • Potreban osigurač po fazi: 32 A
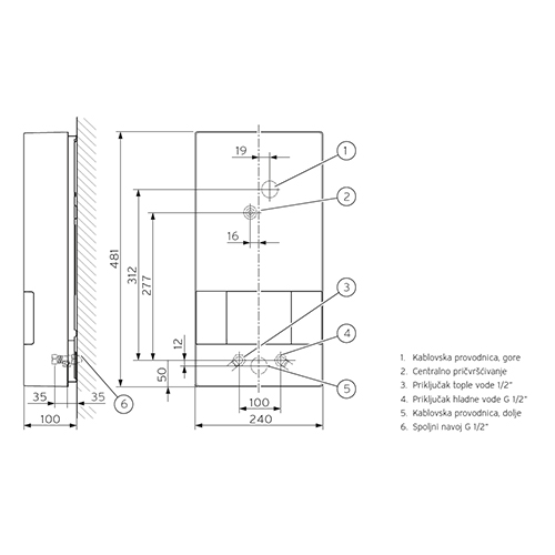
  • Rastojanje između priključnih cevi: 100 mm
  • Mogućnost povezivanja na solarni sistem: Da
  • Vodootporan, zaštita IP 25
  • Zaštita od prevruće vode: Da, mehanička
  • Težina: 4.4 kg
  • Dimenzije (ŠxVxD): 24,0 x 48,1 x 9,9 cm
  • Pogledajte izdvojenu ponudu protočnih bojlera 18kw snage, kao i kompletnu ponudu protočnih bojlera.

Prava potrošača u skladu sa zakonom o zaštiti potrošača.

* Inelektronik nastoji da bude što preciznija u opisu svih proizvoda, ali ne možemo da garantujemo da su svi opisi kompletni i bez grešaka.

* Sve cene su sa uračunatim PDV-om.
Proizvod je iskljucivo namenjen kućnoj upotrebi i nije predviđen za profesionalnu upotrebu, osim ako to nije posebno naglašeno na samom proizvodu.

Vaillant protočni bojler Exclusive VED E 18/8 E INT 0010023754

ID proizvoda: 17417

Cena za plaćanje na rate: 85.990,00 RSD

81.990,00 RSD
* Cena za gotovinu i kartice

Nema na stanju, proverite mogućnost naručivanja
DostavaBesplatna dostava

Mi isporučujemo besplatno proizvode na vašu adresu 6 dana nedeljeno za celu Srbiju počev od sutra. Za Beograd i širu okolinu.

  • Isporuka našim vozilom u vaš dom
  • Mogućnost zakazivanje isporuke od 8 do 20h u intervalima od 2 sata
  • Najavljivanje dolaska 30 min pre od strane naših vozača
  • Plaćanje u vašem domu: karticama, čekovima i gotovinom
  • Za Novi Sad isporuka našim vozilom svake subote.
  • Za Miele velike aparate besplatna isporuka našim vozilom za celu Srbiju.
  • Besplatna isporuka na tertoriji Srbije vrše se kurirskom službom u roku od 48h.
  • Cena dostave je 300 rsd za sve kupovine ispod 10000,00

Za više informacija kliknite ovde.

Način plaćanja Plaćanje

Načini plaćanja koje mozžete ostvariti kod nas:

  • U gotovini
  • Plaćanje preko računa za Fizička i Pravna lica
  • Kreditnim karticama: DINA, VISA,VISA ELECTRON , MASTER CARD, MAESTRO CARD, AMERICAN EXPRESS
  • Čekovima građana na 7 rata
  • Banca Intesa platnim karticama na 6 rata
  • Komercijalne banke platnim karticama na 6 rata

Za detaljnije možete kliknuti ovde.

Deklaracija Deklaracija

Proizvođač: Vaillant

Uvoznik: Gas lider DOO

Zemlja porekla: Nemačka

Plaćanje karticama Banka Inteze na 6 rata bez kamate Plaćanje karticama Komercijalne banke na 6 rata bez kamate Način isporuke Za Beograd i okolinu, isporuka robe u Vaš stan

Slični proizvodi

Vaši komentari i ocene Ostavite komentar

Budite prvi koji će ostaviti komentar i oceniti proizvod.

Sigurna kupovina SIGURNA KUPOVINA
Vaša kupovina na našem sajtu je potpuno bezbedna i bez bilo kakvog rizika. Plaćate prilikom preuzimanja proizvoda i za svaki imate na raspolaganju određeni rok na zadovoljstvo.
detaljnije...
Način plaćanja NAČIN PLAĆANJA
Sve poručene proizvoda platite kada ih preuzmete. Plaćanje se vrši pouzećem i moguće je platiti gotovinom, karticama, i čekovima.
detaljnije...
Dostava DOSTAVA
Sve naše proizvode koje naručite putem naše online prodavnice, dostavićemo vam besplatno na teritoriji cele Srbije...
detaljnije...
UniCredit Bank AllSecure - Vaš Partner za Internet Trgovinu VISA MasterCard Maestro Verified by Visa MasterCard SecureCode

© 2026 Inelektronik. All rights reserved.